◆竞赛命题:
快捷酒店又称经济型酒店,是相对于传统的全服务型高档星级酒店而存在的一种价格低廉、服务规范、性价比高的酒店业态,即以大众观光旅游者和中小商务旅行者为主要服务对象,以客房为唯一产品或核心产品,内部功能齐全、设施简洁实用、空间紧凑、色彩明快的现代酒店业态。这类酒店大多是由旧办公楼和其它建筑改造而成,它们的大量出现,使酒店市场的服务层面更加丰富。
◆评委会的组成:
由从事建筑与室内设计教学的专业教师与设计师组成。
◆奖项设置:
一等奖: 3-5 名 颁发奖杯及证书
二等奖: 5-7 名 颁发奖杯及证书
三等奖: 7-10名 颁发奖杯及证书
优秀奖: 30名 颁发证书
鼓励奖: 50名 颁发证书
最佳导师奖 若干 颁发证书
◆设计条件:
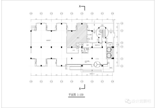
一.本题目为旧办公楼改造成为的快捷酒店,共七层,一层为大堂,自助餐厅,办公和酒店内部用房,二层至七层为客房层。
二.为参赛者提供需设计的一层大堂和自助餐厅部分及标准客房平面、剖立面、外立面图。(见附图,JPG文件图可在中国室内设计网下载)




1.大堂、自助餐厅
①净高:3850mm
②主梁底高:3250 mm
③次梁底高:3350 mm
④外墙厚:250 mm
⑤内墙厚:150 mm
⑥柱:600 mm×350 mm、450 mm×350 mm
2.客房
①净高:2850 mm
②梁底高:2550 mm
③门洞口尺寸:900 mm×2100 mm
④窗洞口尺寸:1350 mm×1350 mm
3.卫生间
①门洞口尺寸:700 mm×2100 mm
②窗洞口尺寸:600 mm×1350 mm
◆设计内容:
一.设计范围:大堂、自助餐厅、客房(含卫生间)
二.设计要求:
1.设计符合快捷酒店原则,并在功能与形式上注入设计新概念。
2.大堂空间需满足总台接待、自助商务等功能的前提下,可考虑新功能的选择。
3.自助餐厅设计可考虑不同就餐人数对餐桌组合形式的变化,提供自助餐台的设计,并兼顾咖啡厅功能的复合使用。厨房无需设计。
4.客房为标准双床房,设计需满足休息、阅读、书写、上网、茶水、置物、视听;以及沐浴、盥洗、座便等功能。同时注重设计创新、突破传统设计形象。
5.设计用料考虑低成本、易清洁、重环保等设计原则。
◆设计表达:
1.设计说明:明确表达出方案设计的概念、手法。
2.设计投影图:包括平面图、平顶图、主要立面、剖立面图(比例自定)。
3.效果表现:要求绘制大堂、餐厅、客厅空间的效果图,表现形式不限。
4.陈设设计:绘制主要的家具、灯饰或其它配饰的室内产品设计图。
◆作品参赛形式要求:
1.需在线填写参赛报名表,作品只限百度网盘提交,报名表及提交地址请关注网站www.ciid.com.cn信息内容。请将参赛资料的展板按照参赛要求保存到您个人的百度云盘,将参赛作品的文件夹共享,提交共享链接地址和提取密码。组委会收到网络提交的作品后,会短信告知联系人。
2.作品提交内容及要求:
在线提交内容包括:
①网上填写报名表
②作品展板资料以百度云盘方式保存并共享,提交共享链接地址和提取密码。
③制作展板要求:参赛者自行将设计内容编排在590×820mm的展板版心幅面范围内(统一采用竖式构图),参赛者仅将展板的最终电子文档(保存为JPG格式,200dpi)上传至百度云盘。组委会负责统一编辑板眉和板脚(将统一标注竞赛名称,作者无需在版心内另行标注)、出图、装裱。
◆参赛要求:
1.参赛者仅限各院(系)在读的专科、本科、研究生。
2.参赛者可以个人参赛,也可组织团队参赛,团队参赛的人数不得超过5人。
3.《参赛报名表》的项目要填写齐全、清晰。
4.每张展板需缴纳参赛费人民币100元/(含报名、制版、出图、装裱、评审等费用)。需开发票者,如在6月30日前未收到发票,请与财务联系查询(010-88355882),过期不再办理。 注:报名表中“是否开具发票”项和“发票抬头”项空白不填的视为不要发票。
◆汇款方式:
(请在备注栏填写参赛人姓名)
(1)银行转账:
开户行:兴业银行北京首体支行
户 名:北京中室万方文化传媒有限公司
帐 号:321280100100135344
(2)邮局汇款:
地址:北京市海淀区首体南路20号国兴家园4号楼2404室 邮编:100044
收款人:北京中室万方文化传媒有限公司
◆注意事项:
1.报名截止日期为2018年5月15日。
2.参赛者应真实正确填写参赛报名表。
3.参赛作品展板中不能出现任何与参赛者、指导者以及院(系)等有关的信息和标记等内容,否则将视其为无效作品。
4.组委会有对参赛作品进行展览、刊登、出版的权利。组委会在使用参赛作品时,对其作者、指导者以及院(系)的署名,依据《参赛报名表》。
5.参赛作品和参赛费均不退还作者。
6.参赛作品为参赛者本人原创设计,如发现抄袭现象,即取消参赛资格。
7.每个获奖作品只颁发一份获奖证书和奖杯。
8.组委会对竞赛活动具有最终解释权。
◆联系方式:
电话:010-51196444,88355881 联系人:崔林、卢佳忆
主办方:新人杯全国老员工室内设计竞赛组委会
学术指导单位:中国建筑学会室内设计分会